목동센트럴아이파크위브 시세, 교통, 학군, 생활환경 총정리
서울 양천구 신월동에 위치한 목동센트럴아이파크위브는 3045세대 규모의 대단지 아파트로, 입주 시기는 2020년 5월로 비교적 신축입니다. 이 아파트는 다양한 평형대의 세대를 제공하며, 현대적인 설계와 쾌적한 생활 환경을 자랑합니다. 특히, 주변에는 생활 편의시설이 잘 갖춰져 있어 주민들의 생활 만족도가 높습니다. 교통 편의성 또한 뛰어나 대중교통을 이용하기에 매우 유리합니다. 이번 글에서는 목동센트럴아이파크위브의 다양한 정보를 통해 이 아파트의 매력을 상세히 알아보겠습니다.
목동센트럴아이파크위브가 아니더라도 서울 부동산에 관심있으신 분들은 편하게 상담주세요.
목동센트럴아이파크위브에 대한 정보 문의는
아래 버튼을 눌러 카카오톡으로 연락 주시면 친절하게 상담드리겠습니다.
안녕, 부동산
안녕부동산
pf.kakao.com
1. 아파트 정보



목동센트럴아이파크위브는 서울 양천구 신월동에 위치하며, 35개 동과 23층 구조로 이루어져 있습니다. 총 세대수는 3045세대로, 각 세대당 주차 공간은 1.16대가 제공됩니다. 난방 방식은 개별난방과 도시가스를 사용하고 있으며, 관리비는 25평형 기준으로 약 16.4만원입니다. 다양한 평형대가 마련되어 있어 가족 구성원에 따라 선택할 수 있는 장점이 있습니다.
이 아파트는 쾌적한 환경을 제공하기 위해 넓은 산책로와 다양한 커뮤니티 시설, 운동 시설 등을 갖추고 있습니다. 이러한 시설들은 주민들이 건강한 생활을 영위할 수 있도록 도와줍니다. 또한, 아파트 내에는 다양한 상점들이 있어 생활 편의성을 높이고 있습니다.
2. 교통 정보



목동센트럴아이파크위브는 교통 편의성이 뛰어난 위치에 자리하고 있습니다. 가장 가까운 지하철역은 신정네거리역(2호선)으로, 도보로 약 1,046m 거리에 위치해 있습니다. 이 외에도 영등포역에서 KTX를 이용할 수 있는 고속철도역이 5,799m 떨어져 있어, 서울 전역 및 타 지역으로의 접근성이 우수합니다.
버스 정류장도 가까운 거리 내에 위치해 있어 다양한 노선을 이용할 수 있습니다. 특히, 신한은행 신월동 지점 정류장이 134m로 가까워 대중교통 이용이 매우 편리합니다. 이러한 교통 여건은 출퇴근 및 이동 시 큰 장점을 제공합니다.
3. 생활 환경



목동센트럴아이파크위브 주변에는 다양한 생활 편의시설이 밀집해 있습니다. NH농협은행 신월동 지점이 109m, 신한은행 신월동 지점이 176m 거리에 위치해 있어 금융 서비스 이용이 용이합니다. 또한, 서울서남병원과 같은 종합병원도 가까워 응급 상황 시 빠르게 대처할 수 있는 환경이 마련되어 있습니다.
그러나 대형마트가 1500m 이내에 없는 점은 아쉬운 부분입니다. 대신 소규모 상점과 식당, 카페가 많이 있어 일상적인 쇼핑과 외식에는 큰 불편이 없습니다. 또한, 계남공원과 넘은들공원 등 다양한 공원이 가까워 여가 활동을 즐기기에 좋은 조건을 갖추고 있습니다.
4. 학군 진학률



목동센트럴아이파크위브 인근에는 학군이 양호한 초등학교와 중학교가 위치해 있습니다. 신남초등학교는 전국 상위 43%, 서울 상위 97%의 진학률을 자랑하며, 도보로 100m 거리에 있습니다. 이러한 교육 환경은 자녀 교육에 매우 긍정적인 영향을 미칠 것으로 보입니다.
중학교 또한 강신중학교(전국 상위 41%, 서울 상위 85%), 신남중학교(전국 상위 45%, 서울 상위 89%), 금옥중학교(전국 상위 24%, 서울 상위 70%)가 인근에 위치해 있어, 자녀들이 좋은 교육을 받을 수 있는 환경이 조성되어 있습니다. 이러한 학군은 많은 부모들에게 중요한 요소로 작용할 것입니다.
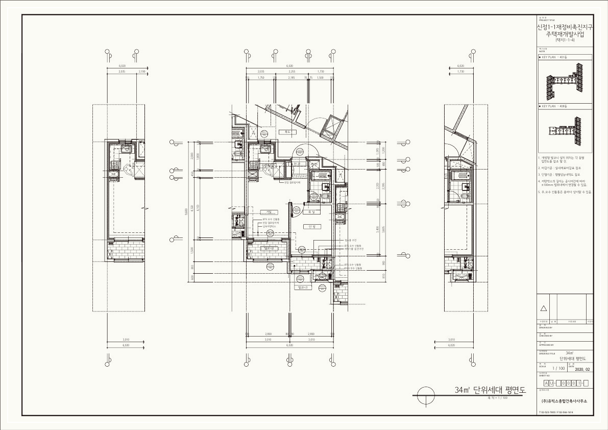
5. 평면 구조



목동센트럴아이파크위브는 다양한 평형대의 세대를 제공합니다. 25D 평형(197세대)과 33J 평형(216세대) 등 다양한 구조가 마련되어 있어 가족 구성원이나 생활 스타일에 맞춰 선택할 수 있는 장점이 있습니다. 이러한 다양한 평면 구조는 입주민들에게 보다 쾌적한 생활 공간을 제공합니다.
각 평형은 방과 화장실의 수에 따라 다르게 구성되어 있어, 가족의 필요에 맞춘 공간 활용이 가능합니다. 특히, 넓은 거실과 충분한 수납공간은 현대적인 생활 스타일을 반영하여 많은 입주민들에게 인기를 끌고 있습니다.
6. 아파트 시세



목동센트럴아이파크위브의 시세는 최근 부동산 시장의 변화에 따라 변동성이 있지만, 신축 아파트로서 안정적인 시세를 유지하고 있습니다. 이 아파트는 서울 양천구의 중심지에 위치하고 있어, 향후 시세 상승이 기대되는 지역입니다. 특히, 교통 편의성과 생활 인프라가 잘 갖추어진 점은 시세에 긍정적인 영향을 미치고 있습니다.
투자자나 실거주를 고려하는 분들에게는 안정적인 투자처로 여겨질 수 있으며, 특히 젊은 가족이나 직장인들에게 인기가 높습니다. 다만, 대형마트가 가까이 없다는 점은 시세에 영향을 미칠 수 있는 요소로 작용할 수 있습니다.
7. 아파트 평가



목동센트럴아이파크위브는 주민들의 생활 만족도가 높은 아파트로 평가받고 있습니다. 쾌적한 환경과 다양한 커뮤니티 시설, 운동 시설 등이 마련되어 있어 입주민들이 건강하고 행복한 생활을 영위할 수 있도록 돕고 있습니다. 주변의 다양한 소규모 상점과 공원은 주민들에게 편리함과 여가를 제공합니다.
교통 여건 또한 우수하여, 대중교통을 이용한 이동이 용이합니다. 이러한 점들은 많은 사람들이 이 아파트를 선택하는 이유 중 하나로 작용하고 있습니다. 교육 환경 또한 양호하여, 자녀 교육에 대한 걱정이 적은 점도 큰 장점입니다.
8. 결론



목동센트럴아이파크위브는 서울 양천구 신월동에 위치한 대단지 아파트로, 다양한 생활 편의시설과 교통 여건이 잘 갖춰져 있어 많은 사람들에게 사랑받고 있습니다. 특히, 신축 아파트로서 현대적인 설계와 쾌적한 환경을 제공하여 입주민들의 생활 만족도를 높이고 있습니다. 다양한 평형대의 세대와 넓은 커뮤니티 시설은 가족 단위의 거주자들에게 안성맞춤입니다.
학교와의 거리도 가까워 자녀 교육에 대한 걱정이 적으며, 주변의 다양한 공원과 여가 시설은 주민들에게 여유로운 일상을 제공합니다. 앞으로도 목동센트럴아이파크위브는 지속적으로 인기를 끌 것으로 예상되며, 안정적인 투자처로도 주목받을 것입니다. 이러한 다양한 장점들을 고려할 때, 목동센트럴아이파크위브는 많은 사람들에게 매력적인 선택이 될 것입니다.
목동센트럴아이파크위브가 아니더라도 서울 부동산에 관심있으신 분들은 편하게 상담주세요.
목동센트럴아이파크위브에 대한 정보 문의는
아래 버튼을 눌러 카카오톡으로 연락 주시면 친절하게 상담드리겠습니다.
안녕, 부동산
안녕부동산
pf.kakao.com
함께 보면 좋은 부동산 글
디에이치 르블랑(신반포2차 재건축) 현대건설 제안서
오늘은 디에이치 르블랑(신반포2차 재건축) 현대건설 제안서에 대한 주제로 글을 작성해드릴게요. 최근 현대건설이 신반포2차 재건축 프로젝트인 디에이치 르블랑의 설계안을 공개했습니다. 이
t.infohubblog.com